Boundstone Road, Rowledge
The Details
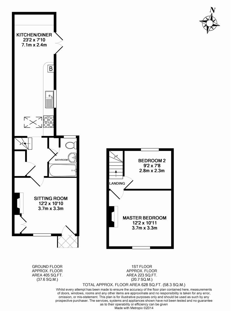
Property Summary
A pretty mid-terrace cottage located in the popular village of Rowledge. The village is located three miles south west of Farnham, offers a shop, butcher, public house, coffee shop, and village hall.
In brief detail the accommodation comprises:
Entrance, kitchen/dining room fitted with shaker style units, vaulted ceiling and skylight. Rear door from the kitchen opens onto a side courtyard leading to the garden.
Pretty front aspect sitting room with exposed brickwork, electric wood-burner and attractive sash windows.
Ground floor bathroom comprising bath with power shower over the bath, heated towel rail, w.c and hand wash basin.
First floor : Main bedroom and small second double bedroom.
Outside : Enclosed front and rear gardens including a garden shed. Two allocated parking spaces at the rear of the property.
Mains drainage.
Gas fire central heating.
Council: Waverley Borough Council - 01483 523333
Council Tax Band: D
EPC: D
With regret no pets, smokers or children
Recent Listings
-
Bedford Road, Guildford, Surrey, GU1 4SJ
£4,300,000 Guide PriceSt James House is a seven-storey mixed use retail and residential building constructed in circa 1970. With a full refurbishment programme and new upper floors added in 2017. The residential building consists of 17 self-contained flats. The flats are accessed via a communal entrance with the benefit...18 Bedrooms17 Bathrooms17 Receptions18 Bed 17 Bath -
Loxwood Road, Rudgwick, Horsham, West Sussex, RH12 3DR
£2,950,000 Guide PriceA remarkable Grade II listed Sussex Farmhouse with substantial accommodation over three floors and exceptional equine facilities. A detached three-bedroom cottage, one-bedroom grooms flat, stable yard with 12 boxes, sand school, several barns, all within glorious gardens and grounds of approx. 21 ac...6 Bedrooms4 Bathrooms5 Receptions6 Bed 4 Bath -
Haslemere Road, Witley, Godalming, Surrey, GU8 5PT
£2,950,000 Guide PriceA distinguished country residence in the heart of the Surrey Hills, timeless architecture, exquisite craftsmanship, and modern refinement. Private parkland setting just minutes from Godalming and Haslemere. In all 3.5 acres5 Bedrooms5 Bathrooms5 Receptions5 Bed 5 Bath
-
Dumpford, Nr Midhurst & Petersfield
£9,995 pcmCOMING SOON!A beautifully restored Grade II listed Manor house with 6 bedrooms, 5 bathrooms with a wealth of character, outbuildings and a tennis court. CONTACT GRANTLEY LETTINGS O1428 651241 FOR MORE INFORMATION.6 Bedrooms4 Bathrooms3 Receptions6 Bed 4 Bath -
Alfold Road, Cranleigh
£8,500 pcmStunning Grade II Listed Tudor house, renovated throughout to the highest standard in a stunning rural setting with garaging, tennis court, swim spa and self contained annexe.4 Bedrooms3 Bathrooms4 Receptions4 Bed 3 Bath -
Linchmere, Haslemere
£3,500 pcmA stunning three bedroom property, formerly stables, sensitively converted to provide a contemporary home in this peaceful and desirable location.3 Bedrooms2 Bathrooms1 Reception3 Bed 2 Bath


















