Naldretts Lane, Rudgwick
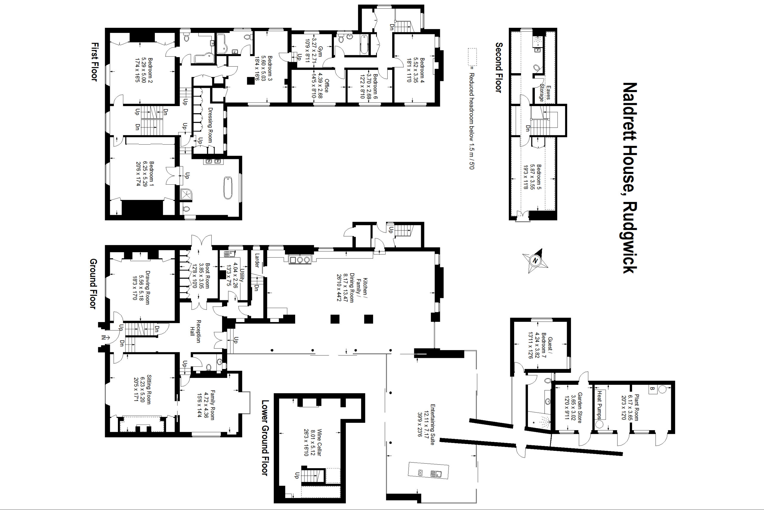
Property Summary
Naldrett House has the unmistakable symmetry of a classic Grade II listed Georgian Country House.
Approach via a long tree-lined driveway and past manicured lawn gardens, a sense of excitement and expectation is felt by all who visit. The front elevation with Georgian sash windows and the Horsham stone roof exemplifies the architecture of this period.
The reception hall with its high ceilings and broad open feel offer in an intriguing vista through to the contemporary additions. The main drawing room has a significant inglenook fireplace and double doors opening to a sitting room with a glass box bay window overlooking the inner courtyard.
The dining room leads from the reception hall and enjoys a fabulous view over the front gardens. These principle reception rooms have been meticulous designed with a colourful yet classical theme, with a warm, welcoming, and stylish finish.
Further along, the central hallway a few steps lead down to the contemporary addition, the entire length of this inner hallway has floor to ceiling sliding glass doors and glass panels bathing the space in light whilst allowing the courtyard and lavender walk to be seen from every angle.
A newly installed bespoke kitchen by Indigo kitchens has been beautifully crafted. With dual-tone cabinets, white stone work surfaces and an oversized central island creates a fabulous space to entertain and to cook. With a fabulous array of cabinets, larder cupboards, coffee station, and bespoke draw units, and four oven Aga, this is a remarkable kitchen. A prep kitchen is discreetly tucked away to the right-hand side. This fabulous open space leads to a breakfast area and a charming seating with a central fireplace.
Sliding doors give way to the family room with stunning views over the rear garden and inner courtyard. A central bar area with island and bespoke cabinetry all add to the usable space for entertaining. This cleverly designed space again has floor to ceiling windows overlooking the inner courtyard and rear swimming pool area. An inner hallway leads to a cloakroom and onto the self-contained one- bedroom ancillary accommodation.
From the main hallway access to the wine cellar with an array of the fitted display, cabinets can be found. The boot room also leads from this hallway and benefits from bespoke storage cabinets and door doubles doors to the side garden.
The first-floor bedroom accommodation is as grand and spacious as the ground floor reception rooms. With high ceilings, large Georgian windows, and all beautifully presented.
The master bedroom suite has been meticulously designed with a full wall of bespoke cabinets and wardrobes. The large Georgian paneled windows have a wonderful view over the front garden and treelined drive. Double doors open into an opulent and spacious en-suite bathroom.
Facilities include a nickel finished standalone bathtub, walk-in shower, and designer vanity unit with dual sinks. An inner door leads to a fully fitted dressing room with bespoke wardrobes, dressing table and shelving units finished in a faux patterned blue faux leather material.
The upper floors also consist of six further double bedrooms and four additional bath/ shower rooms.
From the lane, a tree-lined entrance drive approaches the house from the south and opens to a large gravel forecourt. To one side electric gates open to a further parking area and the triple bay oak barn style garage with adjoining garden and log stores. Greenhouse by Solspan with an automatic irrigation system and planted with a prolific peach tree. Raised vegetable beds. Orchard comprising a wide variety of fruit trees.
The house is surrounded by its gardens and have been professionally landscaped and planted with numerous specimen trees and shrubs. Yew, beech, and box hedge separate areas of the garden creating interest and privacy. Sweeping lawns surround the house and to the front is a large pond, edged with rushes and bulrushes, providing a haven for wildlife.
A focal point of the property is the courtyard, opening from the house and entertaining suite and featuring an Allison Armour Aqualens Sphere Fountain contained within a Portland stone ring reputed to be from the Royal Enclosure at Royal Ascot. The swimming pool is also set within an enclosed area of the garden and has an automatic roller cover and Bisazza mosaic tiles. The pool has an Indian Limestone surround and to one side is a loggia with heating and lighting.
Within the grounds is a tennis court with retractable lighting, 2 stables and a tack room.
The gardens and grounds extend to about 4 acres. A significant amount of landscaping and thinning of the boundary trees and hedging provide far-reaching landscape views. 13.5 acres of farmland wrap around the rear and side boundary with an additional 13.5 acres of paddocks separated by stock proof fencing with water to the paddocks that are positioned across the lane. In all 31 acres.
Property Features
- Grade II listed Georgian Country House
- Drawing room, dining room, sitting room, entertaining suite with bar, wine cellar
- Bespoke kitchen/ breakfast/ family room
- Three-bedroom suites, five further bedrooms, and two further bathrooms
- Self-contained one-bedroom ancillary apartment
- Integrated AV system and Lutron lighting systems
- Triple bay badger barn, Solspan greenhouse with irrigation
- Tennis court, heated Swimming pool
- 4 acres of gardens
- 27 acres of farmland and paddocks
Recent Listings
-
Bedford Road, Guildford, Surrey, GU1 4SJ
£4,300,000 Guide PriceSt James House is a seven-storey mixed use retail and residential building constructed in circa 1970. With a full refurbishment programme and new upper floors added in 2017. The residential building consists of 17 self-contained flats. The flats are accessed via a communal entrance with the benefit...18 Bedrooms17 Bathrooms17 Receptions18 Bed 17 Bath -
Loxwood Road, Rudgwick, Horsham, West Sussex, RH12 3DR
£2,950,000 Guide PriceA remarkable Grade II listed Sussex Farmhouse with substantial accommodation over three floors and exceptional equine facilities. A detached three-bedroom cottage, one-bedroom grooms flat, stable yard with 12 boxes, sand school, several barns, all within glorious gardens and grounds of approx. 21 ac...6 Bedrooms4 Bathrooms5 Receptions6 Bed 4 Bath -
Haslemere Road, Witley, Godalming, Surrey, GU8 5PT
£2,950,000 Guide PriceA distinguished country residence in the heart of the Surrey Hills, timeless architecture, exquisite craftsmanship, and modern refinement. Private parkland setting just minutes from Godalming and Haslemere. In all 3.5 acres5 Bedrooms5 Bathrooms5 Receptions5 Bed 5 Bath
-
Alfold Road, Cranleigh
£8,500 pcmStunning Grade II Listed Tudor house, renovated throughout to the highest standard in a stunning rural setting with garaging, tennis court, swim spa and self contained annexe.4 Bedrooms3 Bathrooms4 Receptions4 Bed 3 Bath -
Linchmere, Haslemere
£3,500 pcmA stunning three bedroom property, formerly stables, sensitively converted to provide a contemporary home in this peaceful and desirable location.3 Bedrooms2 Bathrooms1 Reception3 Bed 2 Bath -
Foley Estate, Liphook
£3,050 pcmA beautifully redecorated three-bedroom, two-bathroom former coach house set within the historic and highly sought-after Foley Estate, offering exceptional privacy and access to the South Downs National Park. The property combines generous proportions, high ceilings, a private garden and modern comf...3 Bedrooms2 Bathrooms2 Receptions3 Bed 2 Bath
























































































