Lords Hill Common, Shamley Green
Property Summary
A striking attached period house which we believe dates from 1860 which has been modernised and renovated over the last few years.
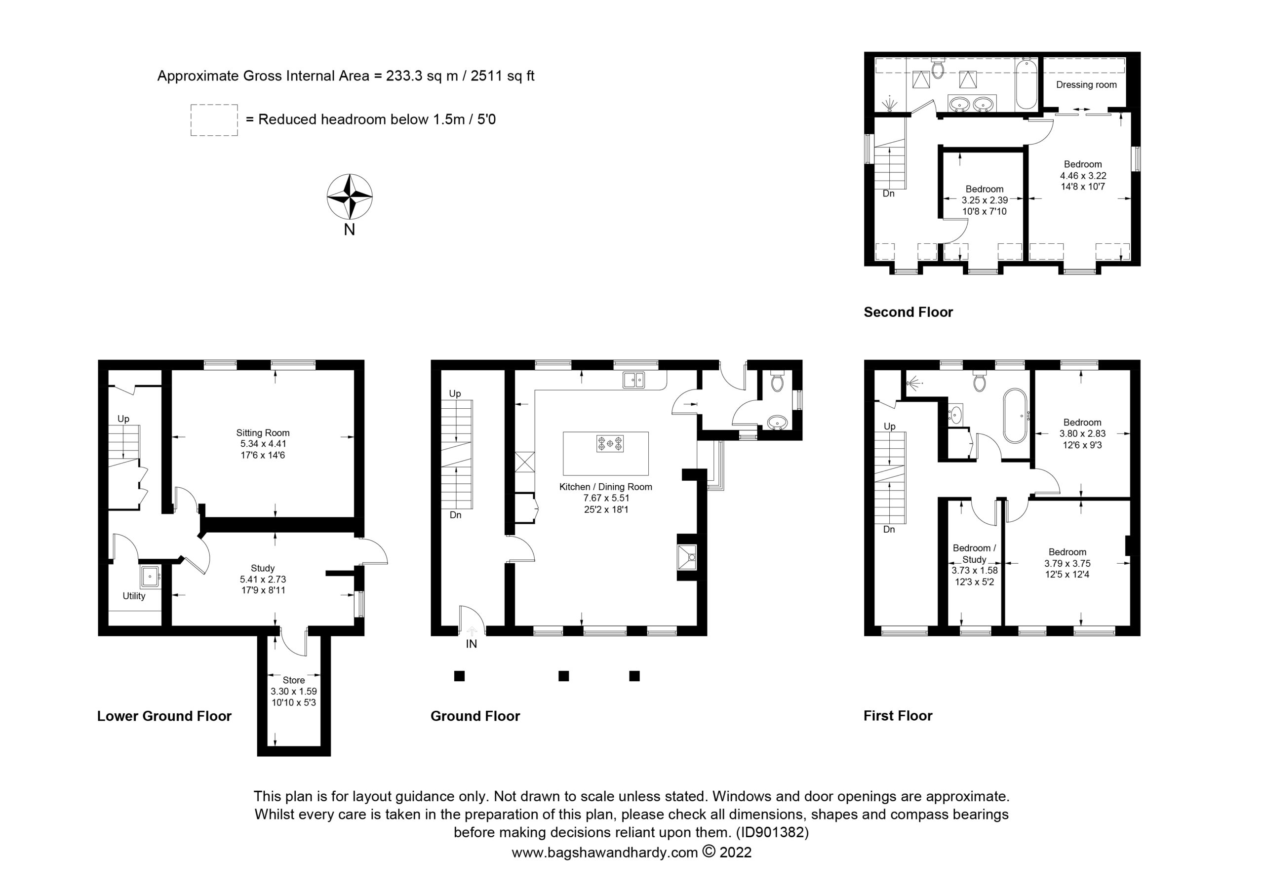
Formerly the general store to the village, the extensive accommodation of over 2500 sq ft, across four floors offers well proportioned rooms with high ceilings and sash windows typical of the period.
The house is highly adaptable and could easily have an annex/home office on the lower ground floor with separate access to the side.
The ground floor is mainly made up of the wonderful kitchen/dining/family room with a well fitted kitchen, a wood burning stove and wonderful views to the front across the common.
Upstairs over two floors are 4 bedrooms with a small 5th bedroom currently used as a study with long views over the common.
The house is approached from Lords Hill Common with parking for two cars and steps up to a veranda with distant views. The south facing garden is to the rear and is predominantly paved.
Beyond the common and visible from the house is the children’s playground.
Shamley Green is arguably one of the most popular villages in Surrey with its quintessential village green, two good pubs and a renowned village stores with a post office. Offering the best of country life with a strong village community and benefitting from Shamley Green Montessori Pre-School, Wonersh and Shamley Green CofE Primary School and the independent Longacre School.
The village is surrounded by some of the finest countryside in the county with excellent walking, riding and cycling right from the doorstep of Lords Hill House whilst at the same time being close to Guildford and Cranleigh which both offer excellent recreational, educational and leisure facilities.
Property Features
- Arranged over four floors rKitchen/dining/family room rSitting room, study, utility room rMaster bedroom and dressing roomrThree further bedrooms, family bathroom and second bathroom with separate showerrBedroom 5/office rSouth facing garden rOff street parking for two cars
Recent Listings
-
Bedford Road, Guildford, Surrey, GU1 4SJ
£4,300,000 Guide PriceSt James House is a seven-storey mixed use retail and residential building constructed in circa 1970. With a full refurbishment programme and new upper floors added in 2017. The residential building consists of 17 self-contained flats. The flats are accessed via a communal entrance with the benefit...18 Bedrooms17 Bathrooms17 Receptions18 Bed 17 Bath -
Loxwood Road, Rudgwick, Horsham, West Sussex, RH12 3DR
£2,950,000 Guide PriceA remarkable Grade II listed Sussex Farmhouse with substantial accommodation over three floors and exceptional equine facilities. A detached three-bedroom cottage, one-bedroom grooms flat, stable yard with 12 boxes, sand school, several barns, all within glorious gardens and grounds of approx. 21 ac...6 Bedrooms4 Bathrooms5 Receptions6 Bed 4 Bath -
Haslemere Road, Witley, Godalming, Surrey, GU8 5PT
£2,950,000 Guide PriceA distinguished country residence in the heart of the Surrey Hills, timeless architecture, exquisite craftsmanship, and modern refinement. Private parkland setting just minutes from Godalming and Haslemere. In all 3.5 acres5 Bedrooms5 Bathrooms5 Receptions5 Bed 5 Bath
-
Alfold Road, Cranleigh
£8,500 pcmStunning Grade II Listed Tudor house, renovated throughout to the highest standard in a stunning rural setting with garaging, tennis court, swim spa and self contained annexe.4 Bedrooms3 Bathrooms4 Receptions4 Bed 3 Bath -
Linchmere, Haslemere
£3,500 pcmA stunning three bedroom property, formerly stables, sensitively converted to provide a contemporary home in this peaceful and desirable location.3 Bedrooms2 Bathrooms1 Reception3 Bed 2 Bath -
Foley Estate, Liphook
£3,050 pcmA beautifully redecorated three-bedroom, two-bathroom former coach house set within the historic and highly sought-after Foley Estate, offering exceptional privacy and access to the South Downs National Park. The property combines generous proportions, high ceilings, a private garden and modern comf...3 Bedrooms2 Bathrooms2 Receptions3 Bed 2 Bath






























































































