Knowle Lane, Cranleigh
Property Summary
Hammer Lodge is a charming timber clad single storey dwelling. Perfect positioned amongst the open fields of the Vachery Estate, this charming home is now ready for extension and refurbishment subject to the usual consents.
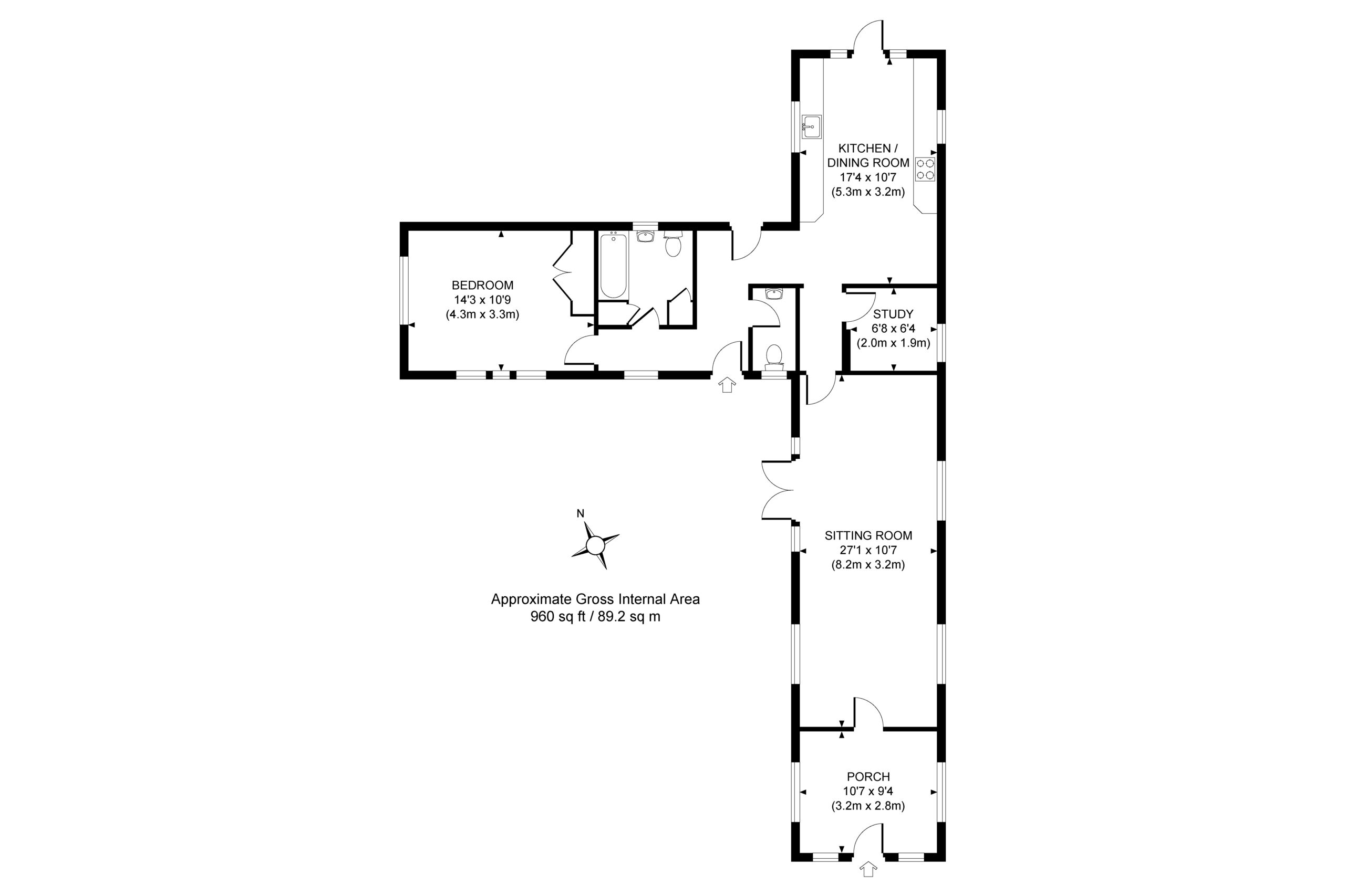
The entrance lobby gives way to a long sitting room with west and easterly aspects, at one end access to an inner hallway leads you to a study/bedroom.
The well-appointed kitchen/breakfast room enjoys dual aspects with rural views. Further along the hallway is a cloakroom and around to the main bedroom and separate bathroom.
A substantial terrace and small lawn garden enjoy terrific views across the adjoining fields. A private driveway provides ample parking.
Cranleigh village has much to offer with a wide range of traditional shops, supermarkets, an M&S Simply Food store together with a great variety of boutique stores, restaurants, coffee shops and public houses. Cranleigh offers a wide range of local school options such as Cranleigh School and Glebelands Secondary School, in addition to various infant and primary schools. A further excellent selection of schools also nearby such as Longacre, St. Catherine’s, The Royal Grammar School, Guildford High School for Girls or Duke of Kent, to name but a few.
For more comprehensive shopping, restaurants, and theatres, the County Town of Guildford is nearby with its mainline station connecting with London Waterloo. The motorway network is easily accessed via the A281/A3 putting central London, Heathrow, and Gatwick within easy reach. Local recreational amenities are plentiful including the local leisure centre with a swimming pool, Cranleigh cricket, and rugby clubs.
The Cranleigh Arts Centre hosts regular films, theatre, bands, comedy, and children’s shows. For the golfing enthusiast, there are numerous courses in the area including Cranleigh Golf & Country Club and Bramley Golf Club, there is also polo at Hurtwood Park and racing at Goodwood.
For the walking, cycling, and riding enthusiasts, the Surrey Hills AONB are seventh heaven proving a network of public footpaths and bridleways amongst the rolling hills of the North Downs.
Cranleigh Village 1.5 miles, Guildford 10 miles, Godalming 10.5 miles, London 42 miles, Heathrow Airport 32 miles, Gatwick Airport 26.3 miles
Property Features
- Entrance porch
- Sitting room
- Kitchen/Dining Room
- Cloakroom
- Bedroom
- Bathroom
- Study/Bedroom 2
- Generous garden terraces and parking
Recent Listings
-
Bedford Road, Guildford, Surrey, GU1 4SJ
£4,300,000 Guide PriceSt James House is a seven-storey mixed use retail and residential building constructed in circa 1970. With a full refurbishment programme and new upper floors added in 2017. The residential building consists of 17 self-contained flats. The flats are accessed via a communal entrance with the benefit...18 Bedrooms17 Bathrooms17 Receptions18 Bed 17 Bath -
Loxwood Road, Rudgwick, Horsham, West Sussex, RH12 3DR
£2,950,000 Guide PriceA remarkable Grade II listed Sussex Farmhouse with substantial accommodation over three floors and exceptional equine facilities. A detached three-bedroom cottage, one-bedroom grooms flat, stable yard with 12 boxes, sand school, several barns, all within glorious gardens and grounds of approx. 21 ac...6 Bedrooms4 Bathrooms5 Receptions6 Bed 4 Bath -
Haslemere Road, Witley, Godalming, Surrey, GU8 5PT
£2,950,000 Guide PriceA distinguished country residence in the heart of the Surrey Hills, timeless architecture, exquisite craftsmanship, and modern refinement. Private parkland setting just minutes from Godalming and Haslemere. In all 3.5 acres5 Bedrooms5 Bathrooms5 Receptions5 Bed 5 Bath
-
Alfold Road, Cranleigh
£8,500 pcmStunning Grade II Listed Tudor house, renovated throughout to the highest standard in a stunning rural setting with garaging, tennis court, swim spa and self contained annexe.4 Bedrooms3 Bathrooms4 Receptions4 Bed 3 Bath -
Linchmere, Haslemere
£3,500 pcmA stunning three bedroom property, formerly stables, sensitively converted to provide a contemporary home in this peaceful and desirable location.3 Bedrooms2 Bathrooms1 Reception3 Bed 2 Bath -
Foley Estate, Liphook
£3,050 pcmA beautifully redecorated three-bedroom, two-bathroom former coach house set within the historic and highly sought-after Foley Estate, offering exceptional privacy and access to the South Downs National Park. The property combines generous proportions, high ceilings, a private garden and modern comf...3 Bedrooms2 Bathrooms2 Receptions3 Bed 2 Bath




































































