Hookley Lane, Elstead, Godalming
The Details
Property Summary
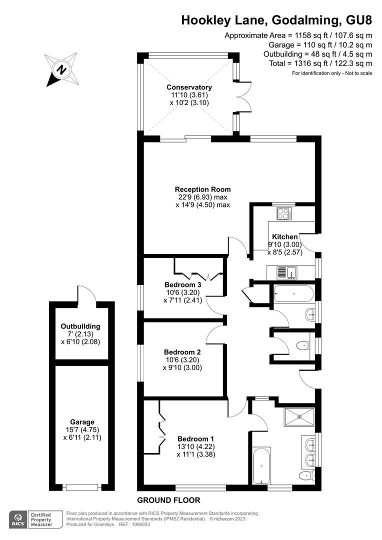
A detached single storey home offering spacious and light accommodation set back from this popular residential no-through road, yet within walking distance of the village. The village lies approximately 2 miles from the A3 at Milford.
In brief detail the accommodation comprises:
Entrance hall, with hanging for coats. Cloakroom. Main bedroom with double fitted wardrobes, en-suite bathroom with separate walk in shower cubicle, twin wash basin with vanity unit, separate bath. Bedroom 2 (double). Bedroom 3 (single) with built in cupboards. Family bathroom, comprising bath with shower over, w.c and hand wash basin. Kitchen, fitted with electric oven, gas hob, washing machine and dishwasher. Door to outside. Spacious sitting room/dining room, with sliding patio doors to the conservatory.
Outside, single garage, garden shed (cannot confirm dry storage for either), good size rear garden which will be maintained at the landlords expense during the tenancy.
Mains gas central heating.
Mains drainage.
Council Tax Band E
EPC - D
Recent Listings
-
Bedford Road, Guildford, Surrey, GU1 4SJ
£4,300,000 Guide PriceSt James House is a seven-storey mixed use retail and residential building constructed in circa 1970. With a full refurbishment programme and new upper floors added in 2017. The residential building consists of 17 self-contained flats. The flats are accessed via a communal entrance with the benefit...18 Bedrooms17 Bathrooms17 Receptions18 Bed 17 Bath -
Loxwood Road, Rudgwick, Horsham, West Sussex, RH12 3DR
£2,950,000 Guide PriceA remarkable Grade II listed Sussex Farmhouse with substantial accommodation over three floors and exceptional equine facilities. A detached three-bedroom cottage, one-bedroom grooms flat, stable yard with 12 boxes, sand school, several barns, all within glorious gardens and grounds of approx. 21 ac...6 Bedrooms4 Bathrooms5 Receptions6 Bed 4 Bath -
Haslemere Road, Witley, Godalming, Surrey, GU8 5PT
£2,950,000 Guide PriceA distinguished country residence in the heart of the Surrey Hills, timeless architecture, exquisite craftsmanship, and modern refinement. Private parkland setting just minutes from Godalming and Haslemere. In all 3.5 acres5 Bedrooms5 Bathrooms5 Receptions5 Bed 5 Bath
-
Dumpford, Nr Midhurst & Petersfield
£9,995 pcmCOMING SOON!A beautifully restored Grade II listed Manor house with 6 bedrooms, 5 bathrooms with a wealth of character, outbuildings and a tennis court. CONTACT GRANTLEY LETTINGS O1428 651241 FOR MORE INFORMATION.6 Bedrooms4 Bathrooms3 Receptions6 Bed 4 Bath -
Alfold Road, Cranleigh
£8,500 pcmStunning Grade II Listed Tudor house, renovated throughout to the highest standard in a stunning rural setting with garaging, tennis court, swim spa and self contained annexe.4 Bedrooms3 Bathrooms4 Receptions4 Bed 3 Bath -
Linchmere, Haslemere
£3,500 pcmA stunning three bedroom property, formerly stables, sensitively converted to provide a contemporary home in this peaceful and desirable location.3 Bedrooms2 Bathrooms1 Reception3 Bed 2 Bath






































