Hillfield Close, Guildford
The Details
Property Summary
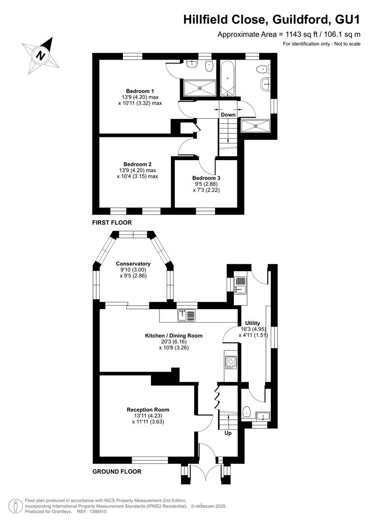
The ground floor centres around a spacious kitchen/dining room, which stretches the width of the house and provides plenty of room for cooking, dining, and everyday living. From here, doors open into a bright conservatory, creating an inviting space that connects directly to the garden. At the front of the property is a generous reception room. A useful utility room sits just off the kitchen, along with a downstairs WC, with external access to the garden.
Upstairs, the first floor offers three bedrooms, all accessed from a central landing. You will find the main bedroom with ensuite shower room and a second double bedroom. A third, smaller bedroom works well as a child’s room, guest room or study. Upstairs also includes a bathroom with separate bath and shower, and a separate WC, providing convenience for busy households.
Driveway parking for one car in front of the house as well as one space in front of the garage, which is also included.
Conveniently located near local amenities, schools, and transport links, this property offers the perfect blend of comfort and convenience for a family or professionals looking to settle in a peaceful yet well-connected area.
EPC Rating D
Council Tax Band D
Holding deposit £507
Available in January
Recent Listings
-
Bedford Road, Guildford, Surrey, GU1 4SJ
£4,300,000 Guide PriceSt James House is a seven-storey mixed use retail and residential building constructed in circa 1970. With a full refurbishment programme and new upper floors added in 2017. The residential building consists of 17 self-contained flats. The flats are accessed via a communal entrance with the benefit...18 Bedrooms17 Bathrooms17 Receptions18 Bed 17 Bath -
Loxwood Road, Rudgwick, Horsham, West Sussex, RH12 3DR
£2,950,000 Guide PriceA remarkable Grade II listed Sussex Farmhouse with substantial accommodation over three floors and exceptional equine facilities. A detached three-bedroom cottage, one-bedroom grooms flat, stable yard with 12 boxes, sand school, several barns, all within glorious gardens and grounds of approx. 21 ac...6 Bedrooms4 Bathrooms5 Receptions6 Bed 4 Bath -
Haslemere Road, Witley, Godalming, Surrey, GU8 5PT
£2,950,000 Guide PriceA distinguished country residence in the heart of the Surrey Hills, timeless architecture, exquisite craftsmanship, and modern refinement. Private parkland setting just minutes from Godalming and Haslemere. In all 3.5 acres5 Bedrooms5 Bathrooms5 Receptions5 Bed 5 Bath
-
Dumpford, Nr Midhurst & Petersfield
£9,995 pcmCOMING SOON!A beautifully restored Grade II listed Manor house with 6 bedrooms, 5 bathrooms with a wealth of character, outbuildings and a tennis court. CONTACT GRANTLEY LETTINGS O1428 651241 FOR MORE INFORMATION.6 Bedrooms4 Bathrooms3 Receptions6 Bed 4 Bath -
Alfold Road, Cranleigh
£8,500 pcmStunning Grade II Listed Tudor house, renovated throughout to the highest standard in a stunning rural setting with garaging, tennis court, swim spa and self contained annexe.4 Bedrooms3 Bathrooms4 Receptions4 Bed 3 Bath -
Linchmere, Haslemere
£3,500 pcmA stunning three bedroom property, formerly stables, sensitively converted to provide a contemporary home in this peaceful and desirable location.3 Bedrooms2 Bathrooms1 Reception3 Bed 2 Bath










































