Highfield Lane, Thursley
Property Summary
Upper Highfield Cottage sits in an elevated position behind a mature high hedgerow and is accessed via a private gravelled driveway with ample parking.
With attractive half-tile hung upper elevations above a red brick and stone façade, this property exudes a feeling of a contemporary country home.
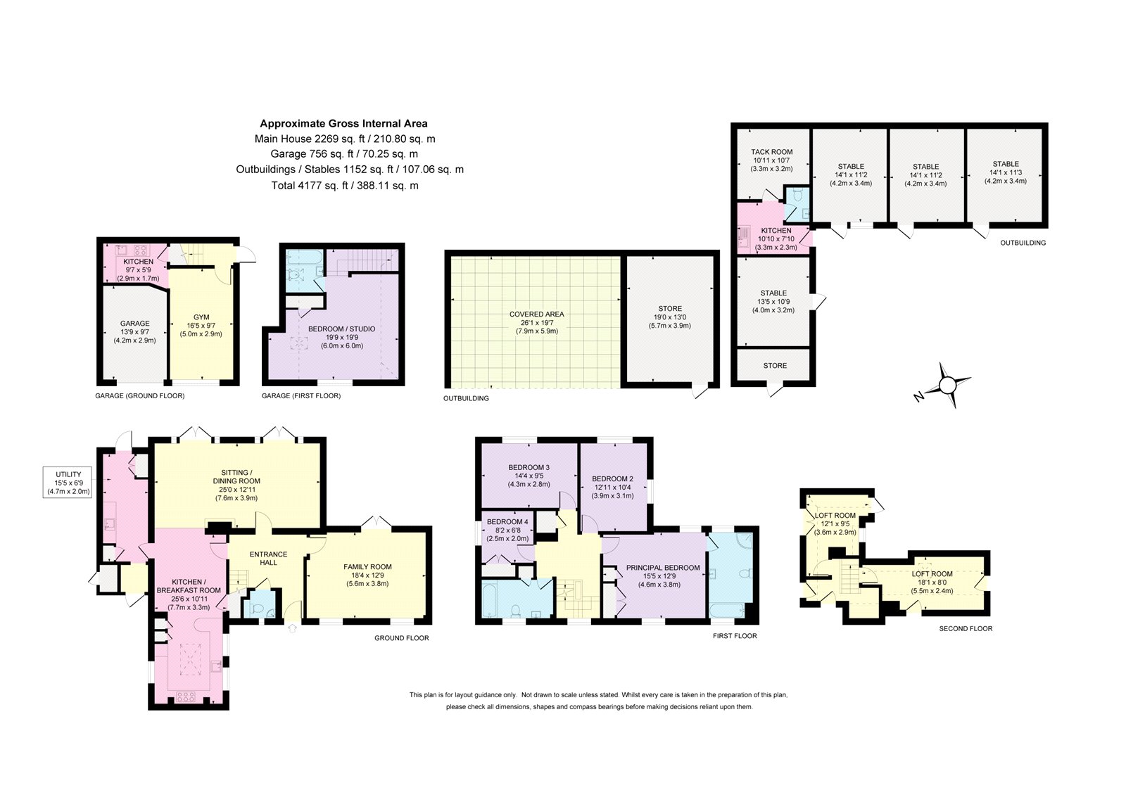
A broad reception hall leads through to the generous sitting/dining room that extends across the full width of the rear of the house. This superb space enjoys two sets of double doors out to the garden, and a delightful fireplace with wood burning stove.
The sitting room has been opened at one end to create an open plan feel, connecting with the kitchen/breakfast room.
A modern shaker-style kitchen radiates country charm, with ample storage solutions, and a three oven range-style electric cooker. A breakfast bar separates the room with a generous space for a dining table.
Also leading from the reception hallway is a substantial family room, with lovely views across the front gardens and double doors out to the garden terraces.
The first-floor accommodation is equally impressive. The principal bedroom suite has a range of fitted wardrobes, a full en-suite bathroom and superb views over the garden and paddocks beyond. There are three further bedrooms and a family bathroom on this floor, and a partially converted loft space has been added to create two further occasional rooms.
Upper Highfield Cottage enjoys a private and mature garden of circa 0.45 acres, with an expansive patio area, and a level lawn garden with mature beds and boarders. At the end of the garden is a timber-built garden shed, and access to the fields and paddocks beyond.
Equine facilities
The yard can be accessed on foot from the rear garden of the cottage, or alternatively approached via the side lane, which runs parallel to the gardens. A good-sized parking area has plenty of space for horse boxes and trailers. The yard itself is enclosed by post and rail fencing and provides four good-sized boxes, a tack room, and a groom's kitchen. Further along is a hay barn and large covered area for your farrier/vet, or if preferred it could be used as a machinery store.
The first 9 acres of fields have been divided into several paddocks with water stations and post and rail fencing. In the centre of this field is a 60m x 20m menage, which is made up of sand and rubber covering. Towards the end of this main field a 5-bar gate leads down a gentle slope into a further 10.8 acres of paddocks which hold a valley setting and are simply stunning
The drainage is excellent being predominantly sand and loam.
For those looking for good local hacking, there are numerous routes you can take from Upper Highfield Cottage that take you around the Surrey Hills, Thursley and Hankley common, and to the Devils Punch Bowl.
Upper Highfield Farmhouse is tucked away at the end of Highfield Lane, a mile from the village, surrounded by open countryside and superb hacking straight onto the Devils Punch Bowl. Thursley enjoys a thriving sense of community with its renowned village-owned The Three Horseshoes public house, cricket club and church. Of specific mention is the surrounding common, a National Reserve which offers many miles of wonderful sandy tracks for walking and riding.
The country town of Godalming is easily reached and provides an excellent range of shops, supermarkets, and restaurants. For more comprehensive shopping the county town of Guildford provides superb shopping and recreational facilities including the Yvonne Arnaud Theatre, the Surrey Sports Park and Spectrum Leisure Centre.
Communications are excellent with fast trains to London from Godalming and Milford, whilst the A3 provides fast access to London, the national motorway network and Gatwick and Heathrow Airports.
There are many highly regarded local schools in the vicinity including St Catherine’s in Bramley, the Royal Grammar School and Guildford High School in Guildford as well as closer to home, Charterhouse, Prior’s Field, Aldro, St Hilary’s and Godalming Sixth Form College.
A3 Thursley junction 1 mile, Godalming 4.7 miles (London Waterloo 47 min), Milford Station 4.3 miles (London Waterloo 50 min), Guildford 9 miles, Central London 38 miles
Property Features
- Private driveway with ample parking
- Sitting room/dining room, family room
- Kitchen/breakfast room with breakfast bar, utility/boot room
- Principal bedroom suite with en suite bathroom
- Three double bedrooms, family bathroom
- Two loft rooms
- Detached garage block with a self-contained annexe
- Yard with a modern stable block of four boxes
- Tack room,grooms kitchen, hay barn, and covered farrier/vet station
- 60m x 20m Menage
- Post and rail-fenced paddocks and fields
- In all 15.9 acres on sand
Recent Listings
-
Bedford Road, Guildford, Surrey, GU1 4SJ
£4,300,000 Guide PriceSt James House is a seven-storey mixed use retail and residential building constructed in circa 1970. With a full refurbishment programme and new upper floors added in 2017. The residential building consists of 17 self-contained flats. The flats are accessed via a communal entrance with the benefit...18 Bedrooms17 Bathrooms17 Receptions18 Bed 17 Bath -
Loxwood Road, Rudgwick, Horsham, West Sussex, RH12 3DR
£2,950,000 Guide PriceA remarkable Grade II listed Sussex Farmhouse with substantial accommodation over three floors and exceptional equine facilities. A detached three-bedroom cottage, one-bedroom grooms flat, stable yard with 12 boxes, sand school, several barns, all within glorious gardens and grounds of approx. 21 ac...6 Bedrooms4 Bathrooms5 Receptions6 Bed 4 Bath -
Haslemere Road, Witley, Godalming, Surrey, GU8 5PT
£2,950,000 Guide PriceA distinguished country residence in the heart of the Surrey Hills, timeless architecture, exquisite craftsmanship, and modern refinement. Private parkland setting just minutes from Godalming and Haslemere. In all 3.5 acres5 Bedrooms5 Bathrooms5 Receptions5 Bed 5 Bath
-
Alfold Road, Cranleigh
£8,500 pcmStunning Grade II Listed Tudor house, renovated throughout to the highest standard in a stunning rural setting with garaging, tennis court, swim spa and self contained annexe.4 Bedrooms3 Bathrooms4 Receptions4 Bed 3 Bath -
Linchmere, Haslemere
£3,500 pcmA stunning three bedroom property, formerly stables, sensitively converted to provide a contemporary home in this peaceful and desirable location.3 Bedrooms2 Bathrooms1 Reception3 Bed 2 Bath -
Foley Estate, Liphook
£3,050 pcmA beautifully redecorated three-bedroom, two-bathroom former coach house set within the historic and highly sought-after Foley Estate, offering exceptional privacy and access to the South Downs National Park. The property combines generous proportions, high ceilings, a private garden and modern comf...3 Bedrooms2 Bathrooms2 Receptions3 Bed 2 Bath














































































































