High Street, Ripley
Property Summary
Manor Cottage was constructed in the mid-16th Century as part of the hall house with the adjoining Manor House. With a timber frame and right of centre stack with an inglenook fireplace. The three Dutch gables and brick façade were added in the 17c enclosing the timber frame. This charming Grade II listed property was extended to the west in the early 20th century forming the characterful home offered today.
Positioned within the heart of the historic and ever popular village of Ripley, this landmark building exudes charm and character, with exposed timbers, stunning red and blue brick inserts and with detailed Flemish bond sections. The entrance via a gravelled pathway leads through a front garden area with formal Buxus hedging and highwall boundary.
Stepping into the reception hallway, you are greeted by a warm and welcoming interior and period doorway leading to the drawing room. This charming reception is centred by a large inglenook fireplace and recessed snug area perfect for quiet contemplation or reaching for a classic novel.
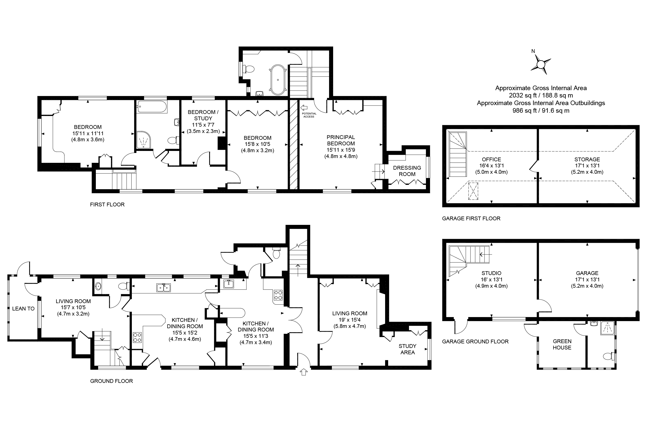
The house has been semi-converted into two separate dwellings as two generations reside here. The dining room is currently being used as a small kitchen/ breakfast room whose fittings can easily be removed to return this reception back to its former use. Leading from this reception room is small utility area and cloakroom with back door to the cottage garden.
Continuing through the ground floor you enter the main kitchen/ breakfast room, with a good array of eye and base level units, exposed oak timbers and space for a large farmhouse style breakfast table. Towards the end of the building is a good-sized family room with a timber lean to conservatory opening into the garden.
The first-floor bedroom accommodation is accessed via two sperate staircases. Towards the front of the cottage and leading from the entrance hallway is a turning staircase that leads to the master bedroom and bathroom. This good-sized bedroom also has the benefit of a dressing area. The back stairs leading from the family room to a generous landing and onto two further double bedrooms, bedroom three and family bathroom.
The rear walled garden is beautifully laid out with centuries old wisteria and other mature shrubs and herbaceous borders. A pathway leads to a detached studio building and garage. The studio has a good-sized reception room, cloakroom, and upper floor office – perfect if you are working from home. An oversized single garage with tall sliding doors provides ample space for parking and a workshop area. There is direct access to the adjoining service road for the garage and fenced gravel yard.
Property Features
- Reception hall, drawing room, dining room, family room, kitchen/breakfast room.r
- Master bedroom with dressing area, 3 further double bedrooms, two bathrooms. r
- Detached two storey studio building with cloakroom facilities and a garage. r
- Walled cottage gardens with formal Buxus hedging centuries old Wisteria and Virginia creeper. r
- Planning permission was granted in 2015 to extend the ground floor u2013 this has now lapsed but can be reapplied for: Ref: 15/P/01435
Recent Listings
-
Bedford Road, Guildford, Surrey, GU1 4SJ
£4,300,000 Guide PriceSt James House is a seven-storey mixed use retail and residential building constructed in circa 1970. With a full refurbishment programme and new upper floors added in 2017. The residential building consists of 17 self-contained flats. The flats are accessed via a communal entrance with the benefit...18 Bedrooms17 Bathrooms17 Receptions18 Bed 17 Bath -
Loxwood Road, Rudgwick, Horsham, West Sussex, RH12 3DR
£2,950,000 Guide PriceA remarkable Grade II listed Sussex Farmhouse with substantial accommodation over three floors and exceptional equine facilities. A detached three-bedroom cottage, one-bedroom grooms flat, stable yard with 12 boxes, sand school, several barns, all within glorious gardens and grounds of approx. 21 ac...6 Bedrooms4 Bathrooms5 Receptions6 Bed 4 Bath -
Haslemere Road, Witley, Godalming, Surrey, GU8 5PT
£2,950,000 Guide PriceA distinguished country residence in the heart of the Surrey Hills, timeless architecture, exquisite craftsmanship, and modern refinement. Private parkland setting just minutes from Godalming and Haslemere. In all 3.5 acres5 Bedrooms5 Bathrooms5 Receptions5 Bed 5 Bath
-
Alfold Road, Cranleigh
£8,500 pcmStunning Grade II Listed Tudor house, renovated throughout to the highest standard in a stunning rural setting with garaging, tennis court, swim spa and self contained annexe.4 Bedrooms3 Bathrooms4 Receptions4 Bed 3 Bath -
Linchmere, Haslemere
£3,500 pcmA stunning three bedroom property, formerly stables, sensitively converted to provide a contemporary home in this peaceful and desirable location.3 Bedrooms2 Bathrooms1 Reception3 Bed 2 Bath -
Foley Estate, Liphook
£3,050 pcmA beautifully redecorated three-bedroom, two-bathroom former coach house set within the historic and highly sought-after Foley Estate, offering exceptional privacy and access to the South Downs National Park. The property combines generous proportions, high ceilings, a private garden and modern comf...3 Bedrooms2 Bathrooms2 Receptions3 Bed 2 Bath
































































