Hampton Estate, Seale
The Details
Property Summary
Description
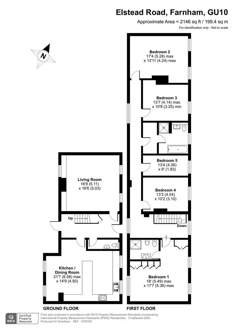
Throughout the ground floor are wonderfully high ceilings and consists of an entrance hall from which there is large kitchen/diner sitting room with wood burning stove and a downstairs w.c.
On the first floor is a master bedroom with ensuite shower room, three further double bedrooms, one single bedroom, family bathroom with separate shower and bath, as well as a utility area.
Outside
Outside to the rear is a patio garden with views over the estate grounds and to the front is as well as a large allocated garage.
Location
The cottage is located in a rural environment within the Hampton Estate grounds with Puttenham village only a few minutes drive away. The village includes a primary school and a public house. Guildford and beyond can be accessed via the A31 and A3.
Guildford Borough Council band G:
Holding Deposit: £692
Water services: £90 pcm - NEED TO CHECK WITH THE ESTATE
EPC Band: D
Recent Listings
-
Bedford Road, Guildford, Surrey, GU1 4SJ
£4,300,000 Guide PriceSt James House is a seven-storey mixed use retail and residential building constructed in circa 1970. With a full refurbishment programme and new upper floors added in 2017. The residential building consists of 17 self-contained flats. The flats are accessed via a communal entrance with the benefit...18 Bedrooms17 Bathrooms17 Receptions18 Bed 17 Bath -
Loxwood Road, Rudgwick, Horsham, West Sussex, RH12 3DR
£2,950,000 Guide PriceA remarkable Grade II listed Sussex Farmhouse with substantial accommodation over three floors and exceptional equine facilities. A detached three-bedroom cottage, one-bedroom grooms flat, stable yard with 12 boxes, sand school, several barns, all within glorious gardens and grounds of approx. 21 ac...6 Bedrooms4 Bathrooms5 Receptions6 Bed 4 Bath -
Haslemere Road, Witley, Godalming, Surrey, GU8 5PT
£2,950,000 Guide PriceA distinguished country residence in the heart of the Surrey Hills, timeless architecture, exquisite craftsmanship, and modern refinement. Private parkland setting just minutes from Godalming and Haslemere. In all 3.5 acres5 Bedrooms5 Bathrooms5 Receptions5 Bed 5 Bath
-
Dumpford, Nr Midhurst & Petersfield
£9,995 pcmCOMING SOON!A beautifully restored Grade II listed Manor house with 6 bedrooms, 5 bathrooms with a wealth of character, outbuildings and a tennis court. CONTACT GRANTLEY LETTINGS O1428 651241 FOR MORE INFORMATION.6 Bedrooms4 Bathrooms3 Receptions6 Bed 4 Bath -
Alfold Road, Cranleigh
£8,500 pcmStunning Grade II Listed Tudor house, renovated throughout to the highest standard in a stunning rural setting with garaging, tennis court, swim spa and self contained annexe.4 Bedrooms3 Bathrooms4 Receptions4 Bed 3 Bath -
Linchmere, Haslemere
£3,500 pcmA stunning three bedroom property, formerly stables, sensitively converted to provide a contemporary home in this peaceful and desirable location.3 Bedrooms2 Bathrooms1 Reception3 Bed 2 Bath
























