Greencroft, Guildford
Property Summary
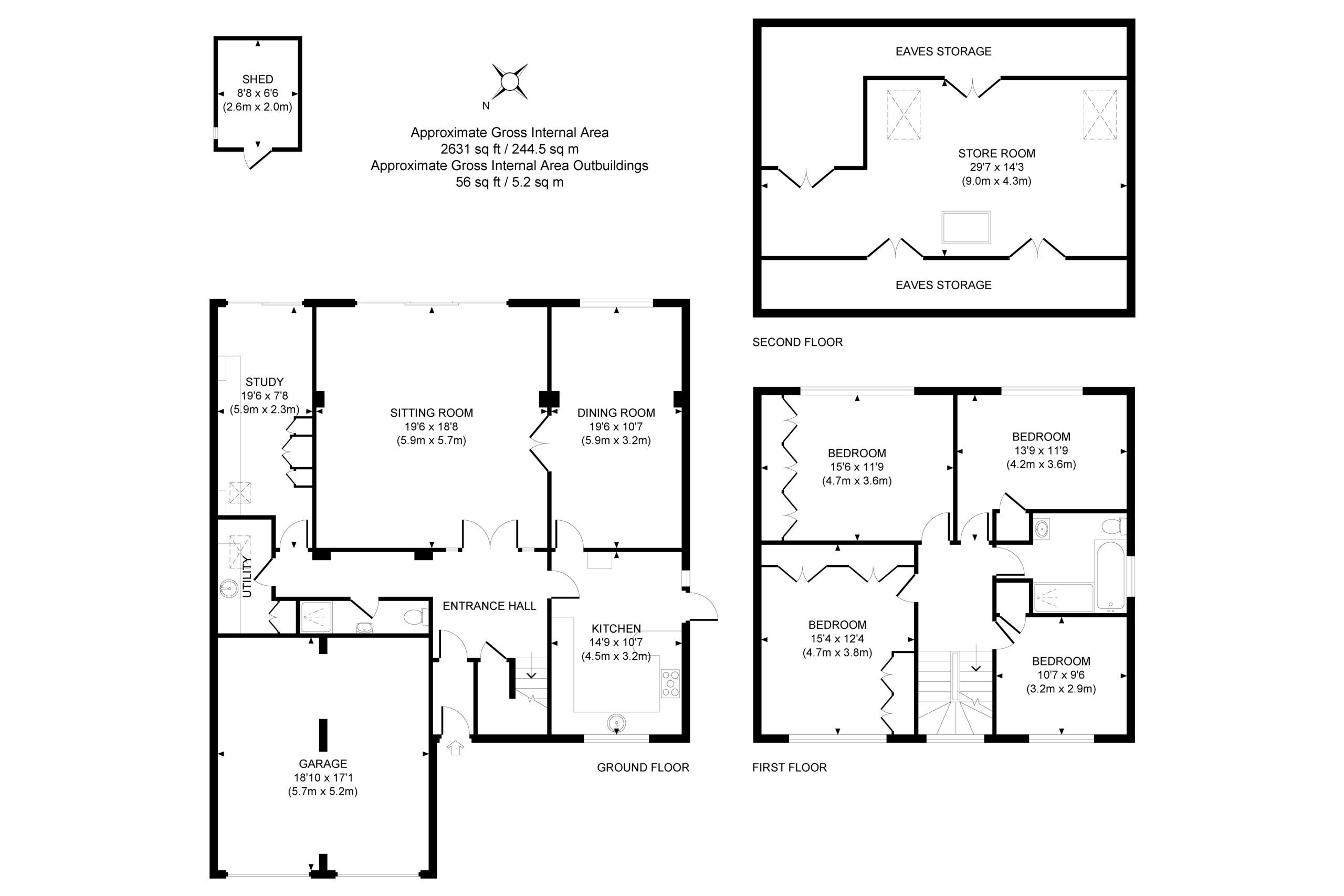
Approached via a private driveway with parking for four cars, a covered porch leads onto the main entrance hallway. The main drawing room enjoys a wonderful view across the patio and the garden beyond. With triple width patio doors this delightful room is bright and airy. Double internal doors lead into the dining room. From here you can access the well fitted kitchen which has an array of solid wood cabinets, plenty of worksurface area, a breakfast bar with seating for two. And a range style cooker.
Further along the main hallway is a study with access to the garden. A utility/ laundry can also be found at this end of the hall, along with a cloakroom and access to the integral garage.
The first-floor hosts to four double bedrooms, and modern family bathroom. The loft has been partial converted with sky lights and carpets flooring providing an excellent storage room. Further development of the loft area may be possible subject to planning permission.
The rear garden is beautifully mature and enjoys a southerly aspect. A large patio area extends to the full width of the house, the main lawn area is edged by well stocked and mature flower bed boarders.
Greencroft is positioned in an excellent catchment area for the leading local schools, both independent and state. With Boxgrove Juniors, St. Thomas of Canterbury, and St Peters senior school just a short walk away. Independent schools such as Lanesborough, Tormead, The Royal grammar school and Guildford High School for girls are also within easy reach. The Merrow Downs is just across the Epsom Road and less 0.25 miles away. Merrow Golf course and numerous trails through the downs afford glorious views over Guildford and endless options for a country walk up to Newlands corner and beyond.
Guildford town centre is but 1.3 miles, with its famous cobbled High Street, which offers excellent shopping with covered shopping precincts and many leading stores, restaurants, and recreational facilities. Despite being a bustling town, Guildford offers a unique blend of town and country living being surrounded by miles of lovely walking and riding countryside with many footpaths and bridleways close by.
Recreational amenities in the area include the highly regarded Yvonne Arnaud Theatre, Odeon Cinema, Surrey Sports Park, Spectrum Leisure Complex as well as many excellent golf courses including Guildford, Clandon and Bramley.
For the commuter by rail, Guildford mainline station has a fast service to London Waterloo whilst the A3 provides excellent road links to the M25 thus putting the south coast, Heathrow and Gatwick International airports and central London within easy reach.
London Road Station (1.3 miles); Guildford Mainline Station (2.1 miles); Waitrose (1.6 miles); Stoke Park (1.5 miles); Central London (32 miles)
Property Features
- Extended drawing room
- Dining room
- Kitchen / Breakfast room
- Study
- Utility room, cloakroom
- Four double bedrooms
- Family bathroom
- Mature South facing rear garden
- Private driveway leading to a double garage
Recent Listings
-
Bedford Road, Guildford, Surrey, GU1 4SJ
£4,300,000 Guide PriceSt James House is a seven-storey mixed use retail and residential building constructed in circa 1970. With a full refurbishment programme and new upper floors added in 2017. The residential building consists of 17 self-contained flats. The flats are accessed via a communal entrance with the benefit...18 Bedrooms17 Bathrooms17 Receptions18 Bed 17 Bath -
Loxwood Road, Rudgwick, Horsham, West Sussex, RH12 3DR
£2,950,000 Guide PriceA remarkable Grade II listed Sussex Farmhouse with substantial accommodation over three floors and exceptional equine facilities. A detached three-bedroom cottage, one-bedroom grooms flat, stable yard with 12 boxes, sand school, several barns, all within glorious gardens and grounds of approx. 21 ac...6 Bedrooms4 Bathrooms5 Receptions6 Bed 4 Bath -
Haslemere Road, Witley, Godalming, Surrey, GU8 5PT
£2,950,000 Guide PriceA distinguished country residence in the heart of the Surrey Hills, timeless architecture, exquisite craftsmanship, and modern refinement. Private parkland setting just minutes from Godalming and Haslemere. In all 3.5 acres5 Bedrooms5 Bathrooms5 Receptions5 Bed 5 Bath
-
Alfold Road, Cranleigh
£8,500 pcmStunning Grade II Listed Tudor house, renovated throughout to the highest standard in a stunning rural setting with garaging, tennis court, swim spa and self contained annexe.4 Bedrooms3 Bathrooms4 Receptions4 Bed 3 Bath -
Linchmere, Haslemere
£3,500 pcmA stunning three bedroom property, formerly stables, sensitively converted to provide a contemporary home in this peaceful and desirable location.3 Bedrooms2 Bathrooms1 Reception3 Bed 2 Bath -
Foley Estate, Liphook
£3,050 pcmA beautifully redecorated three-bedroom, two-bathroom former coach house set within the historic and highly sought-after Foley Estate, offering exceptional privacy and access to the South Downs National Park. The property combines generous proportions, high ceilings, a private garden and modern comf...3 Bedrooms2 Bathrooms2 Receptions3 Bed 2 Bath


































































