Denmark Road, Guildford
The Details
Property Summary
A landmark Edwardian detached building currently used as seven serviced offices on two floors with a self-contained 1-bedroom apartment on the third floor. Ample parking with a detached barn style car port. Secondary barn with two independent offices. Perfectly positioned yards from the London Road station and historic high street.
No. 3 Denmark Road is one of the most recognisable buildings in the upper high street area of Guildford. Currently being used as serviced offices, this charming period building has been adapted carefully for this use, however it could be enhanced further to add additional offices STPP or converted back into a residential dwelling again subject to usual consents.
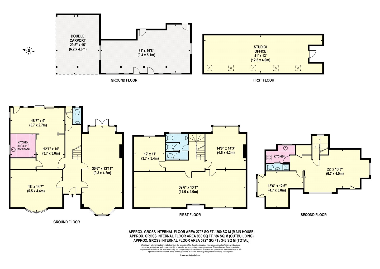
Behind the building is a substantial gravelled parking area for a good number of vehicles. A barn style car port also provides covered parking for two cars. A detached barn style building hosts a generous sized office. The first floor of the barn also offers a good-sized office area. The building is currently arranged as follows:
Current Income = £105,000 p.a
Ground Floor:
Office 1 - 24 m2 / 260.4 sq. ft.
Office 2 – 39.06 m2 / 426.5 sq. ft.
Staff canteen area – 26.49 m2 / 285 sq. ft.
Cloakroom/ WC facilities
First Floor:
Office 3 - 48m2 / 516.66 sq. ft.
Office 4 - 19.35 m2 / 208 sq. ft.
Office 5 - 12.58 m2 / 135.4 sq. ft.
WC facilities (3 x cubicles)
Second Floor:
Self-contained one bedroom apartment with separate kitchen and shower room.
Outside:
Double barn style car port
Ground Floor Office 6 – 47.94 m2 / 516 sq. ft.
First Floor Office 7 – 50 m2 / 538 sq. ft.
Guildford Mainline Station (0.7 miles), London Road Station (0.2 miles), Waitrose (0.3 miles), Stoke Park (0.6 miles), Central London (32 miles)
Services: Main’s water, gas, electricity and drainage, gas central heating
The Location
No. 3 Denmark Road is keenly situated within a short walk of Guildford town centre which offers excellent shopping, restaurants and recreational facilities with its famous cobbled high street, covered shopping precincts, and many leading stores. Despite being a bustling town, it offers a unique blend of town and country being surrounded by miles of lovely walking and riding countryside with many footpaths and bridleways close by. For the commuter by rail, Guildford mainline station has a fast service to London Waterloo whilst the A3 provides excellent road links to the M25 thus putting the south coast, Heathrow and Gatwick International airports and central London within easy reach. Recreation amenities in the area include the highly regarded Yvonne Arnaud Theatre, Odeon Cinema, Surrey Sports Park, Spectrum Leisure Complex as well as many excellent golf courses including Guildford, Clandon and Bramley to name a few.
Local authority: Guildford Borough Council. Telephone: 01483 523333
Recent Listings
-
Bedford Road, Guildford, Surrey, GU1 4SJ
£4,300,000 Guide PriceSt James House is a seven-storey mixed use retail and residential building constructed in circa 1970. With a full refurbishment programme and new upper floors added in 2017. The residential building consists of 17 self-contained flats. The flats are accessed via a communal entrance with the benefit...18 Bedrooms17 Bathrooms17 Receptions18 Bed 17 Bath -
Loxwood Road, Rudgwick, Horsham, West Sussex, RH12 3DR
£2,950,000 Guide PriceA remarkable Grade II listed Sussex Farmhouse with substantial accommodation over three floors and exceptional equine facilities. A detached three-bedroom cottage, one-bedroom grooms flat, stable yard with 12 boxes, sand school, several barns, all within glorious gardens and grounds of approx. 21 ac...6 Bedrooms4 Bathrooms5 Receptions6 Bed 4 Bath -
Haslemere Road, Witley, Godalming, Surrey, GU8 5PT
£2,950,000 Guide PriceA distinguished country residence in the heart of the Surrey Hills, timeless architecture, exquisite craftsmanship, and modern refinement. Private parkland setting just minutes from Godalming and Haslemere. In all 3.5 acres5 Bedrooms5 Bathrooms5 Receptions5 Bed 5 Bath
-
Alfold Road, Cranleigh
£8,500 pcmStunning Grade II Listed Tudor house, renovated throughout to the highest standard in a stunning rural setting with garaging, tennis court, swim spa and self contained annexe.4 Bedrooms3 Bathrooms4 Receptions4 Bed 3 Bath -
Linchmere, Haslemere
£3,500 pcmA stunning three bedroom property, formerly stables, sensitively converted to provide a contemporary home in this peaceful and desirable location.3 Bedrooms2 Bathrooms1 Reception3 Bed 2 Bath -
Foley Estate, Liphook
£3,050 pcmA beautifully redecorated three-bedroom, two-bathroom former coach house set within the historic and highly sought-after Foley Estate, offering exceptional privacy and access to the South Downs National Park. The property combines generous proportions, high ceilings, a private garden and modern comf...3 Bedrooms2 Bathrooms2 Receptions3 Bed 2 Bath






























