Cherry Tree Lane, Ewhurst
Property Summary
A charming modern family home beautifully positioned towards the rear of this bespoke development, overlooking a wildlife pond with landscape views beyond. Set within a short distance to the centre of Ewhurst village, the house is surrounded by open countryside and the glorious Surrey Hills.
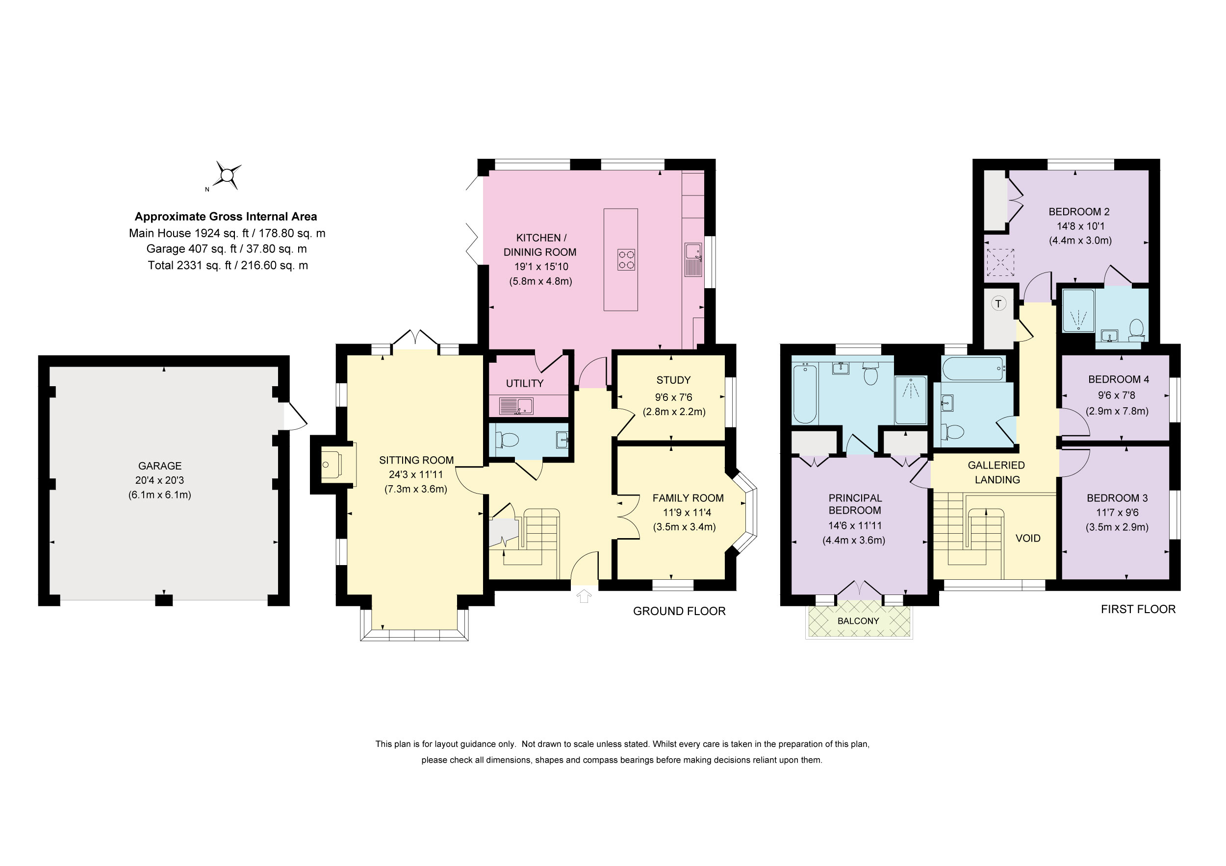
The covered entrance porch opens into the vaulted and galleried reception hall, with light flooding in from the incredible glass front elevation. The subtle grey limed oak effect Karndean flooring gives an immediate indication to the luxurious finishes that have been installed throughout the home.
The drawing room has a superb box bay window with lovely views across the front garden and to the wildlife pond beyond, double-glazed French doors open to the rear garden, and the room is centred by multi brick hearth with oak mantle over and a woodburning stove.
A separate dual-aspect family room provides an additional reception room. A study, cloakroom and under-stairs storage are all added extras to the ground floor space.
One of the many stand-out features is the stunning fitted kitchen/breakfast/family room. This amazing space enjoys a clever use of floor-to-ceiling windows and bi-fold doors, combining to create a glazed corner in this triple-aspect room. The kitchen has been meticulously installed by the German kitchen designer Nobilia and finished in a light satin grey. The wide variety of base-level units and hidden cutlery drawers have been beautifully topped by Silestone Blanco work surfaces. A central island doubles as a breakfast bar or extra preparation space around the inset Elica induction hob with a downdraft extractor. The double Siemens electric fan ovens, microwave, concealed Siemens fridge-freezer and Siemens dishwasher complete this excellent kitchen. A separate utility room is fitted with a Samsung washing machine and tumble dryer with a good work surface area over and some handy storage solutions.
The principal bedroom is simply splendid with high ceilings and a set of French doors leading out to the west-facing balcony with views over the pond. A beautifully appointed Porcelanosa en-suite bathroom with separate shower and a twin set of built-in wardrobes complete this superb principal bedroom suite.
The guest suite also enjoys a Porcelanosa en-suite shower room and a fitted wardrobe. Two further bedrooms (one currently used as a dressing room) and a family bathroom complete the first floor accommodation.
The rear garden wraps around the house, with a large patio area adjacent to the kitchen/breakfast/family room. This well-designed area is perfect for alfresco dining whilst overlooking a lawned area which has two apple trees and a pear tree. To the rear of the garden is access to the garage block. A clever “living wall” has been started to soften the side elevation of the garage. To the right of the garden is a raised decked area which is enclosed on two sides by a high privacy wall and a screened wall of jasmine which flowers during the summer. This perfect sun trap is beautifully planted with an array of summer grasses, an acer tree, Japanese anemone and an abundance of perennials selected to give this area an all-year-round display of colour, contrast and interest.
The front garden is well stocked with a selection of hydrangeas, lavender, box hedging and other perennial planting. The driveway can fit 4 cars comfortably. The double garage has electric up-and-over doors, vaulted rafted ceilings for storage, and a wall-mounted EV vehicle charging point.
Cherry Tree Lane is a beautiful collection of homes built by Millwood Designer Homes and completed in 2021. This stunning boutique collection of properties is in the picturesque Surrey village of Ewhurst. Incorporating a mix of contemporary living and old English heritage, these characterful properties have a breadth of countryside on their doorstep, presenting professionals with a perfectly peaceful location for remote working.
Ewhurst is a pretty village located on the Surrey and West Sussex border, about 38 miles from central London. The village offers a local shop, church, pub and cricket club, all surrounded by lovely open countryside with miles of footpaths and bridle paths, leading onto Pitch Hill, Shere Village and beyond.
Shere is a sought-after village which boasts an ancient parish Church, two public houses, a village store and a post office for daily needs plus doctors’ surgery and dispensary. In addition to the village cricket green, Shere enjoys the benefit of its own Lido which is much prized by the local community.
The larger village of Cranleigh is just 2 miles away and has much to offer with a wide range of traditional shops, supermarkets, an M&S Simply Food store, together with a great variety of boutique stores, restaurants, coffee shops and public houses.
Communications in the area are excellent with commuter train services from Guildford station (Waterloo from about 37 minutes), Horsham, Dorking and Ockley. The A3 is conveniently close and connects with the M25 to provide access to central London, and both Heathrow and Gatwick airports.
Cranleigh School is a short distance away as is Glebelands secondary school, in addition to the excellent Ewhurst village school. There is also a further selection of exceptional schools nearby such as Longacre, St. Catherine’s, The Royal Grammar School, Guildford High School for Girls and Duke of Kent, to name but a few.
Ewhurst – 0.7 miles, Cranleigh – 2.6 miles, Shere 5.9 miles Guildford – 11 miles (London Waterloo from 37 mins), Horsham - 7 miles, Dorking – 10 miles, Ockley Station 5.7 miles, Gatwick Airport – 17 miles, Central London – 38 miles
Property Features
- Vaulted galleried reception hall, cloakroom and storage cupboard
- Triple aspect drawing room with woodburning stove
- Family room, study
- Open plan kitchen/breakfast/family room
- Luxury German Nobilia fitted kitchen, separate utility room
- Principal bedroom suite with balcony
- Guest bedroom suite, two further bedrooms and a family bathroom
- Designer garden, outdoor eating area and private sun terrace
- Private driveway, detached double garage
- Electric car charging point, EPC Rating B
Recent Listings
-
Bedford Road, Guildford, Surrey, GU1 4SJ
£4,300,000 Guide PriceSt James House is a seven-storey mixed use retail and residential building constructed in circa 1970. With a full refurbishment programme and new upper floors added in 2017. The residential building consists of 17 self-contained flats. The flats are accessed via a communal entrance with the benefit...18 Bedrooms17 Bathrooms17 Receptions18 Bed 17 Bath -
Loxwood Road, Rudgwick, Horsham, West Sussex, RH12 3DR
£2,950,000 Guide PriceA remarkable Grade II listed Sussex Farmhouse with substantial accommodation over three floors and exceptional equine facilities. A detached three-bedroom cottage, one-bedroom grooms flat, stable yard with 12 boxes, sand school, several barns, all within glorious gardens and grounds of approx. 21 ac...6 Bedrooms4 Bathrooms5 Receptions6 Bed 4 Bath -
Haslemere Road, Witley, Godalming, Surrey, GU8 5PT
£2,950,000 Guide PriceA distinguished country residence in the heart of the Surrey Hills, timeless architecture, exquisite craftsmanship, and modern refinement. Private parkland setting just minutes from Godalming and Haslemere. In all 3.5 acres5 Bedrooms5 Bathrooms5 Receptions5 Bed 5 Bath
-
Alfold Road, Cranleigh
£8,500 pcmStunning Grade II Listed Tudor house, renovated throughout to the highest standard in a stunning rural setting with garaging, tennis court, swim spa and self contained annexe.4 Bedrooms3 Bathrooms4 Receptions4 Bed 3 Bath -
Linchmere, Haslemere
£3,500 pcmA stunning three bedroom property, formerly stables, sensitively converted to provide a contemporary home in this peaceful and desirable location.3 Bedrooms2 Bathrooms1 Reception3 Bed 2 Bath -
Foley Estate, Liphook
£3,050 pcmA beautifully redecorated three-bedroom, two-bathroom former coach house set within the historic and highly sought-after Foley Estate, offering exceptional privacy and access to the South Downs National Park. The property combines generous proportions, high ceilings, a private garden and modern comf...3 Bedrooms2 Bathrooms2 Receptions3 Bed 2 Bath










































































































