Baynards, Rudgwick, Horsham, RH12 3AD
Property Summary
Baynards Manor Hall is a significant central portion of this Tudor style Manor House. Dating back to 1868 this amazing and historic building is filled with charm and character throughout. Entrance to the house is via a walled courtyard with formal rose garden. (The Victorian rose garden, known as a Victorian Square, was laid out on in 1868 and is unchanged). The addition of mature lavender planting gives a welcome and scented approach to the main entrance porch.
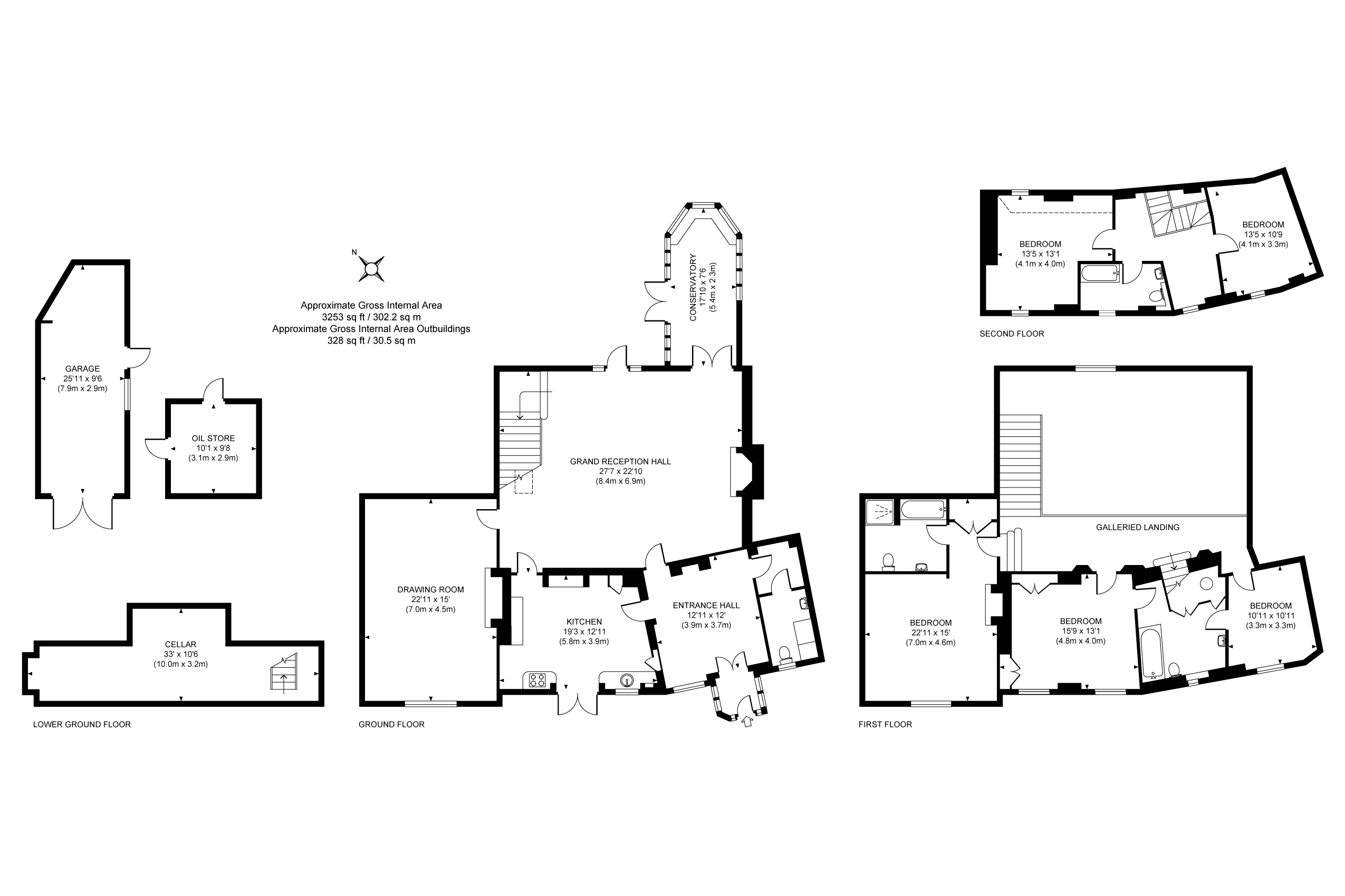
The main entrance porch has a wonderful Tudor panelled top third-leadlight door with galletted detail and side panel lights. Once inside the original oak panelling and ornate plaster work creates a timeless formal entrance. Access is given from here to the cloakroom, kitchen, and grand reception hall.
The grand reception hall is vaulted to the second floor with the original Tudor beamed ceiling some two floors up. A voluminous reception space with a galleried landing provides you with an awe-inspiring view of the room below and ornate ceilings above. With a large central fireplace with open hearth and oak floors this really is a fabulous space in which to entertain. Double doors lead on to a conservatory with lovely views over the mature gardens beyond. A second drawing room is also accessed from the grand reception as is the cellar and kitchen/ breakfast room.
A wide and low-rise oak staircase leads to the gallery, which in turn provides access to the Master bedroom. A large south westerly facing window bathes this opulent mast bedroom in light and benefits from a full en-suite bathroom. Two further double bedrooms are found along the gallery and share access to the bathroom. The second floor plays host to bedroom five and six with a separate bathroom.
The gardens to the rear of the property have a central lawn area with mature tree and herbaceous hedgerow boundaries. An array of flower bed boarders adds colour and interest with a small orchard towards the rear of the garden. A detached double garage block can be accessed from within the front courtyard and from the lane.
In all 0.42 acres.
History
The original house was built in 1868 as a hotel to serve the newly built railway and station at Baynards (closed in 1965) and was known as the Thurlow Arms and subsequently as The Baynards Hotel.
It occupied land owned by The Revd. Thomas Thurlow, owner of Baynards Park and was designed by the architect, Sir Matthew Digby Wyatt, who had been commissioned to make extensive alterations to the house in Baynards Park.
In 1871, the innkeeper Samuel Ranson lived in the house with his wife Mary and their two teenage sons Samuel and William. By 1881, the tenancy of the hotel had changed and was run by James Bloxham and his wife Harriet. In 1884 the situation was to change dramatically. Thomas Lyon Thurlow had a splendid plan (he would) to extend and refurbish his handsome property and move into it himself. A new (Thurlow Arms) public house was built closer to the station platforms and was named the Thurlow Arms. The inn-keeping business transferred there.
Baynards Hotel was extended and converted in a very large house (comprising today's Baynards Manor, Baynards Manor Hall and Baynards manor House) and renamed Vachcry House. The house had various owners and tenants and became known Baynards Manor but lay empty during the Great War. At the end of the War, it was divided into three separate dwellings. In 1924 it was sold and reconverted into one substantial house and in 1927 was purchased by the well-known and successful society portrait painter Glyn Philpott who lived here unto 1935. Glyn Philpot was very well connected with the theatre world of his day and many well-known actors and members of the entertainment world stayed at Baynards Manor as his guests. Amongst them were Noel Coward, Sir John Mills to name but a few.
The property was divided again after the 1939/45 War into the three properties as today, there was no electricity at Baynards until the early fifties and the hamlet was regarded as a rather remote place until this time.
Property Features
- Panelled entrance hall, grand vaulted reception hall with gallery, drawing room, and conservatory. r
- Well-appointed fitted kitchen/ breakfast room, cloakroom, and wine cellar r
- Significant master bedroom with en-suite bathroom, two further bedrooms with a u201cJack & Jillu201d en-suite bathroom
- Two further double bedrooms and bathroom on the 2nd floor r
- Detached double garage building, off street parking r
- Stunning walled courtyard front garden and private mature rear gardens r
- In all 0.42 acres
Recent Listings
-
Bedford Road, Guildford, Surrey, GU1 4SJ
£4,300,000 Guide PriceSt James House is a seven-storey mixed use retail and residential building constructed in circa 1970. With a full refurbishment programme and new upper floors added in 2017. The residential building consists of 17 self-contained flats. The flats are accessed via a communal entrance with the benefit...18 Bedrooms17 Bathrooms17 Receptions18 Bed 17 Bath -
Loxwood Road, Rudgwick, Horsham, West Sussex, RH12 3DR
£2,950,000 Guide PriceA remarkable Grade II listed Sussex Farmhouse with substantial accommodation over three floors and exceptional equine facilities. A detached three-bedroom cottage, one-bedroom grooms flat, stable yard with 12 boxes, sand school, several barns, all within glorious gardens and grounds of approx. 21 ac...6 Bedrooms4 Bathrooms5 Receptions6 Bed 4 Bath -
Haslemere Road, Witley, Godalming, Surrey, GU8 5PT
£2,950,000 Guide PriceA distinguished country residence in the heart of the Surrey Hills, timeless architecture, exquisite craftsmanship, and modern refinement. Private parkland setting just minutes from Godalming and Haslemere. In all 3.5 acres5 Bedrooms5 Bathrooms5 Receptions5 Bed 5 Bath
-
Alfold Road, Cranleigh
£8,500 pcmStunning Grade II Listed Tudor house, renovated throughout to the highest standard in a stunning rural setting with garaging, tennis court, swim spa and self contained annexe.4 Bedrooms3 Bathrooms4 Receptions4 Bed 3 Bath -
Linchmere, Haslemere
£3,500 pcmA stunning three bedroom property, formerly stables, sensitively converted to provide a contemporary home in this peaceful and desirable location.3 Bedrooms2 Bathrooms1 Reception3 Bed 2 Bath -
Foley Estate, Liphook
£3,050 pcmA beautifully redecorated three-bedroom, two-bathroom former coach house set within the historic and highly sought-after Foley Estate, offering exceptional privacy and access to the South Downs National Park. The property combines generous proportions, high ceilings, a private garden and modern comf...3 Bedrooms2 Bathrooms2 Receptions3 Bed 2 Bath




























































































