Thursley, Godalming
The Details
Property Summary
Description
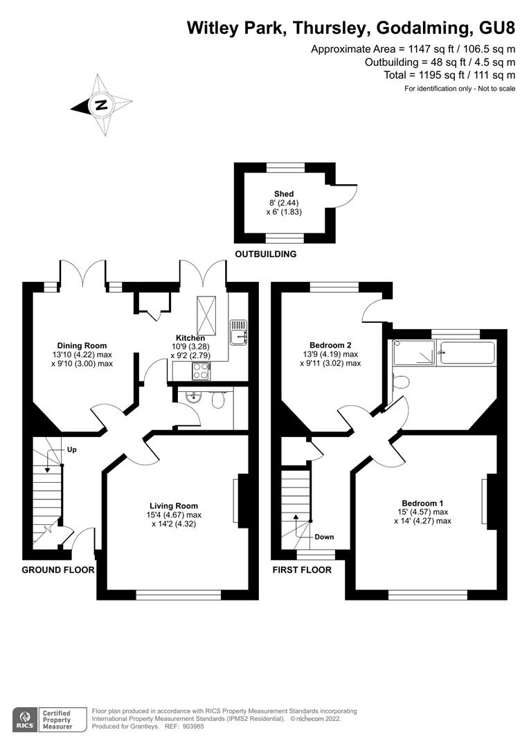
The ground floor is finished with hard flooring throughout. The front door opens into a porch and hallway, leading to a spacious bay-fronted living room, a dining room and fitted kitchen with integrated appliances and French doors to the garden. There is also a downstairs cloakroom/utility with washer and dryer.
On the first floor there are two generous double bedrooms, both recently carpeted. The family bathroom includes a bath, separate shower, basin, and WC.
Outdoors
The property benefits from a private, enclosed rear garden with a patio space leading onto into the lawn with planted borders. There is a garden shed and a rear gate providing access for bins. To the front, there is private off-street parking available for two cars.
Location
French Lane is a wonderful rural setting nestled between the villages of Thursley and Bowlhead Green, with bridleway access leading to miles of countryside walks. There is excellent road access to Guildford and London northbound on the A3, and to Portsmouth in the south.
Pets considered on a case-by-case basis.
Waverley Borough Council Tax Band: E
Utilities (charged in addition to rent payments):
- LPG tank: charged separately by the estate
- Private Water Supply: Charged by the estate based on Thames Water rates
- Shared Septic Tank: Costs shared equally (1/5) between five cottages
- Mains Electricity: Supplied and sub-metered by the estate
- Estate-supplied fibre broadband: approximately £30 per month
EPC: E
Deposit: £2,538 (five weeks’ rent)
Holding Deposit: £507 (one week’s rent)
Recent Listings
-
Bedford Road, Guildford, Surrey, GU1 4SJ
£4,300,000 Guide PriceSt James House is a seven-storey mixed use retail and residential building constructed in circa 1970. With a full refurbishment programme and new upper floors added in 2017. The residential building consists of 17 self-contained flats. The flats are accessed via a communal entrance with the benefit...18 Bedrooms17 Bathrooms17 Receptions18 Bed 17 Bath -
Loxwood Road, Rudgwick, Horsham, West Sussex, RH12 3DR
£2,950,000 Guide PriceA remarkable Grade II listed Sussex Farmhouse with substantial accommodation over three floors and exceptional equine facilities. A detached three-bedroom cottage, one-bedroom grooms flat, stable yard with 12 boxes, sand school, several barns, all within glorious gardens and grounds of approx. 21 ac...6 Bedrooms4 Bathrooms5 Receptions6 Bed 4 Bath -
Haslemere Road, Witley, Godalming, Surrey, GU8 5PT
£2,950,000 Guide PriceA distinguished country residence in the heart of the Surrey Hills, timeless architecture, exquisite craftsmanship, and modern refinement. Private parkland setting just minutes from Godalming and Haslemere. In all 3.5 acres5 Bedrooms5 Bathrooms5 Receptions5 Bed 5 Bath
-
Alfold Road, Cranleigh
£8,500 pcmStunning Grade II Listed Tudor house, renovated throughout to the highest standard in a stunning rural setting with garaging, tennis court, swim spa and self contained annexe.4 Bedrooms3 Bathrooms4 Receptions4 Bed 3 Bath -
Linchmere, Haslemere
£3,500 pcmA stunning three bedroom property, formerly stables, sensitively converted to provide a contemporary home in this peaceful and desirable location.3 Bedrooms2 Bathrooms1 Reception3 Bed 2 Bath -
Foley Estate, Liphook
£3,050 pcmA beautifully redecorated three-bedroom, two-bathroom former coach house set within the historic and highly sought-after Foley Estate, offering exceptional privacy and access to the South Downs National Park. The property combines generous proportions, high ceilings, a private garden and modern comf...3 Bedrooms2 Bathrooms2 Receptions3 Bed 2 Bath


























