Shepherds Hill, Haslemere
The Details
Property Summary
An impressively proportioned Victorian property in the heart of Haslemere town, offering an abundance of characterful accommodation as well as private garden space, parking and garaging.
The home has a wonderful history, having been Haslemeres first cottage hospital, opened in 1898. 3 Anderson Court forms the left-hand portion of this magnificent Victorian building, with its own entrance, parking, and beautifully landscaped gardens.
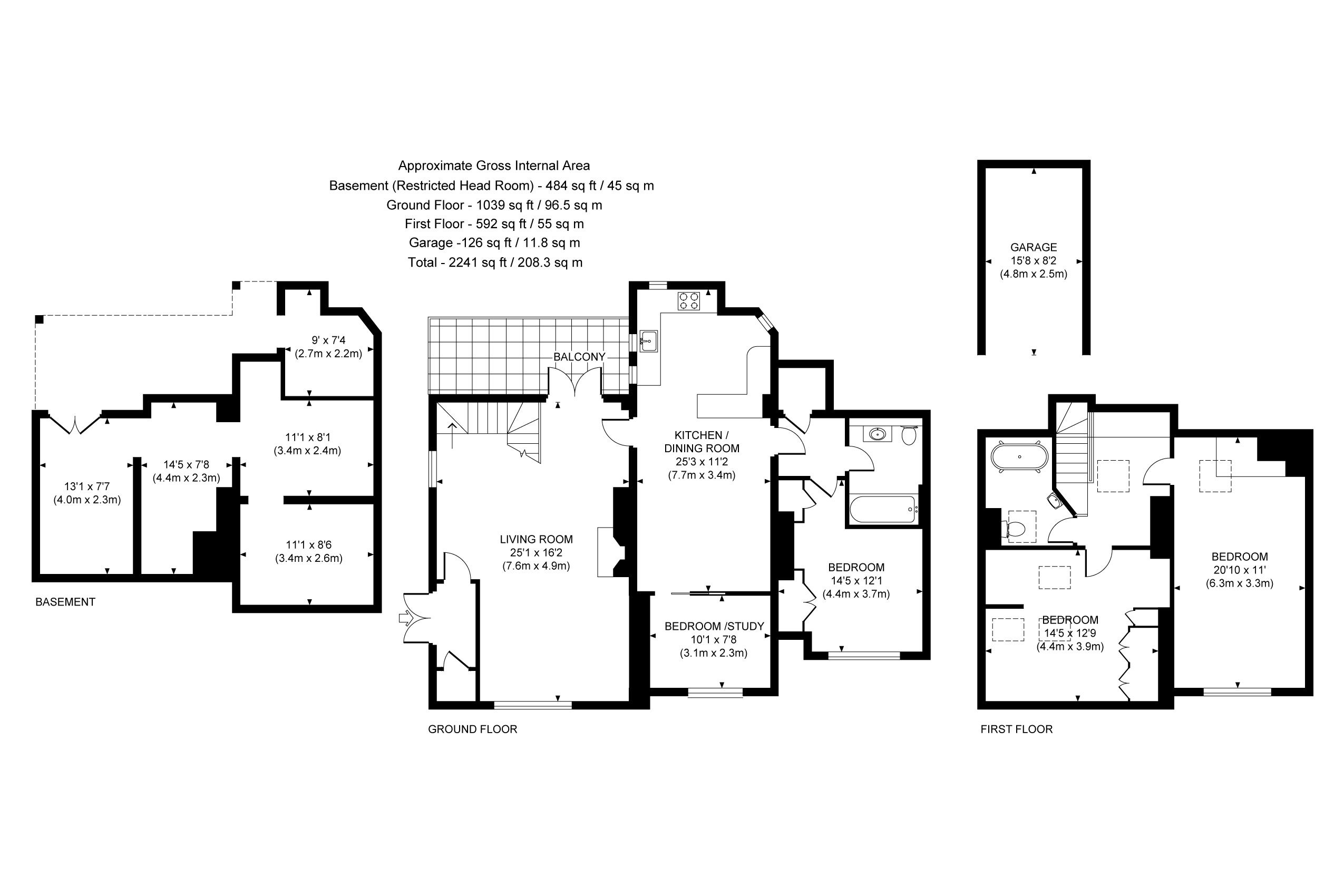
The accommodation, the majority of which has wonderful high ceilings and many period features, has been sympathetically extended and modernised to offer a wonderful mix of period charm and modern convenience. The rooms are bright and spacious with large windows and a beautiful, elevated outlook. The home is split over two floors, with two double bedrooms and a family bathroom on the first floor.
On the ground floor there is an entrance hall that leads into the truly impressive living room, with refurbished original parquet flooring, an open fireplace, large windows, and a French door that leads to an extensive balcony area. The bespoke handmade kitchen is open plan to the dining room and has been replaced by the current owners to offer a stylish and truly practical space for cooking and entertaining. There are two further bedrooms and a family bathroom on the ground floor which means that the space is incredibly flexible and can be used as required by the new owner.
The gardens have been meticulously planned and maintained by the current owner. There are different sections of the garden with lawn, terraces and well stocked, mature flower and shrub borders. There is off street parking for several vehicles, a single garage and a cellar which runs underneath the majority of the property providing superb storage.
Anderson Court sits in a wonderful, elevated position with a leafy rural outlook juxtaposed against its extremely convenient, central location. The property is within a short walk of the town, local shops and the mainline station.
Haslemere offers excellent shopping facilities for day-to-day needs, a choice of restaurants, pubs, coffee shops, along with a tennis club and the newly refurbished Herons Leisure Centre. The mainline station provides services into London Waterloo in approximately 49 minutes. Further shopping facilities are available in the nearby towns of Godalming and Guildford which are easily accessed via the A286 and the A3.
Communications in the area are superb, with London approximately 45 miles away and the A3 at Hindhead and Milford providing access to London, the M25 and Gatwick, Heathrow and Southampton airports.
Sporting facilities are excellent, including golf at Hindhead, Liphook, Cowdray Park and Chiddingfold, racing at Goodwood and Fontwell, polo at Cowdray Park and sailing on Frensham Ponds and off the south coast at Chichester.
Haslemere also has an abundance of beautiful countryside on the doorstep, much of it being owned by the National Trust. These areas are ideal for walking, cycling or riding, including Blackdown, The Devil's Punch Bowl and Hindhead Common.
Haslemere Station 0.6 miles (London Waterloo from 49min), Godalming 9 miles (London Waterloo from 40 min), Guildford 15 miles (London Waterloo from 35 min), central London 44 miles.
Recent Listings
-
Bedford Road, Guildford, Surrey, GU1 4SJ
£4,300,000 Guide PriceSt James House is a seven-storey mixed use retail and residential building constructed in circa 1970. With a full refurbishment programme and new upper floors added in 2017. The residential building consists of 17 self-contained flats. The flats are accessed via a communal entrance with the benefit...18 Bedrooms17 Bathrooms17 Receptions18 Bed 17 Bath -
Pepperbox Lane, Bramley, Guildford, Surrey, GU5 0LW
£2,950,000 Guide PriceAn ultra-energy-efficient and truly unique eight-bedroom family home, combining character, thoughtful design, and contemporary elegance, spanning over 5,500 sq ft and set within 10 enchanting acres.8 Bedrooms6 Bathrooms6 Receptions8 Bed 6 Bath -
Loxwood Road, Rudgwick, Horsham, West Sussex, RH12 3DR
£2,950,000 Guide PriceA remarkable Grade II listed Sussex Farmhouse with substantial accommodation over three floors and exceptional equine facilities. A detached three-bedroom cottage, one-bedroom grooms flat, stable yard with 12 boxes, sand school, several barns, all within glorious gardens and grounds of approx. 21 ac...6 Bedrooms4 Bathrooms5 Receptions6 Bed 4 Bath
-
Marley Combe Road, Haslemere
£3,995 pcmPositioned on a highly popular residential road in the heart of Camelsdale, this 4 bedroom detached home has been transformed to create a stunning and versatile family home.4 Bedrooms2 Bathrooms2 Receptions4 Bed 2 Bath -
Foley Estate, Liphook
£3,050 pcmA beautifully redecorated three-bedroom, two-bathroom former coach house set within the historic and highly sought-after Foley Estate, offering exceptional privacy and access to the South Downs National Park. The property combines generous proportions, high ceilings, a private garden and modern comf...3 Bedrooms2 Bathrooms2 Receptions3 Bed 2 Bath -
Tilthams Green, Godalming
£3,000 pcmA four-bedroom detached family home located in a quiet cul-de-sac, featuring a private garden, gated entrance with off-street parking, and a separate garage4 Bedrooms2 Bathrooms3 Receptions4 Bed 2 Bath




































































